Unieke kans : exclusieve riante villa 1400m² by Artea en Piet Bailyu Architects
Prijs op aanvraag
Exclusieve villa op 7045m² ontworpen door het architectenbureau Piet Bailyu Project Architects uit Knokke-Heist .
Welke wind - en waterdicht ( inclusief ramen- dak en buitendeuren) . Verkoop onder 6%btw voor volledige privéwoning anders 21% btw ook voor de afwerking21% btw
Bouwrealisatie door Artea.be.
U kan naar eigen smaak en noden de binneninrichting en tuin afwerken of verder samenwerken met Artea. Enkele offertes afwerking cv-, sanitair , airco, ventilatie installatie en securitypakket aanwezig.
De bewoonbare oppervlakte is 857, 57m²
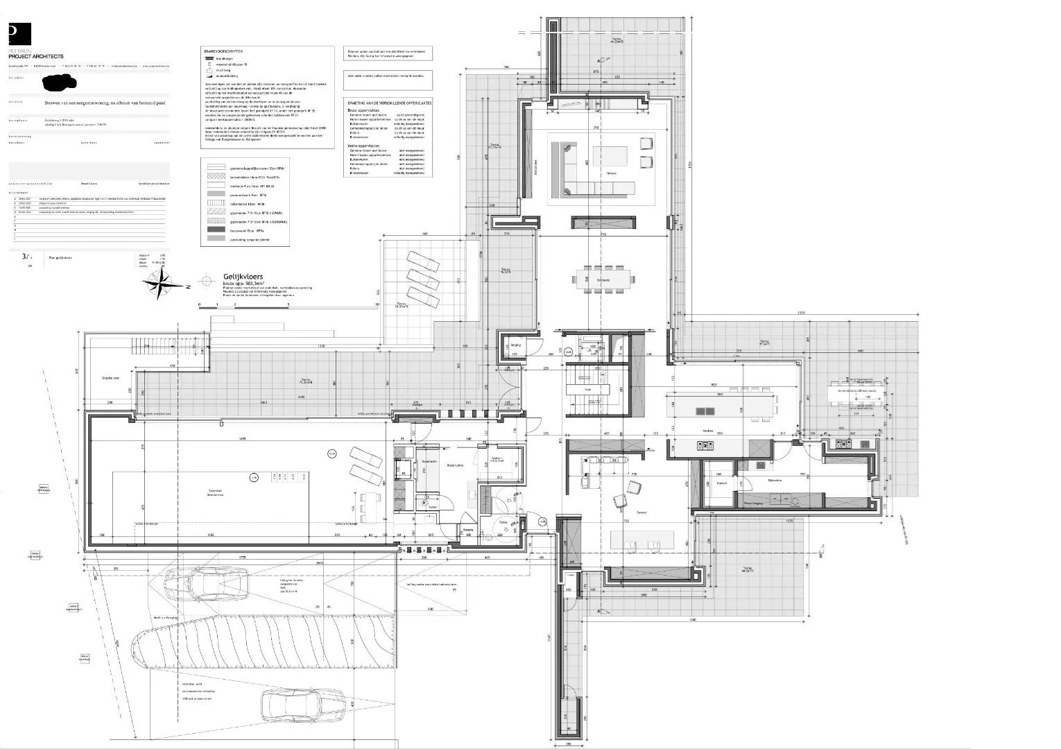
Het gelijkvloers omvat 503, 34m² riante hal, vestiaire, eetplaats, zithoek, keuken, bijkeuken, koelcel, bureau, binnenzwembad, ( exclusief 'zwembad) , douchegedeelte met sauna, sanitair, bergingen, technische ruimte en lift. Er zijn diverse (overdekte) terrassen rondom.
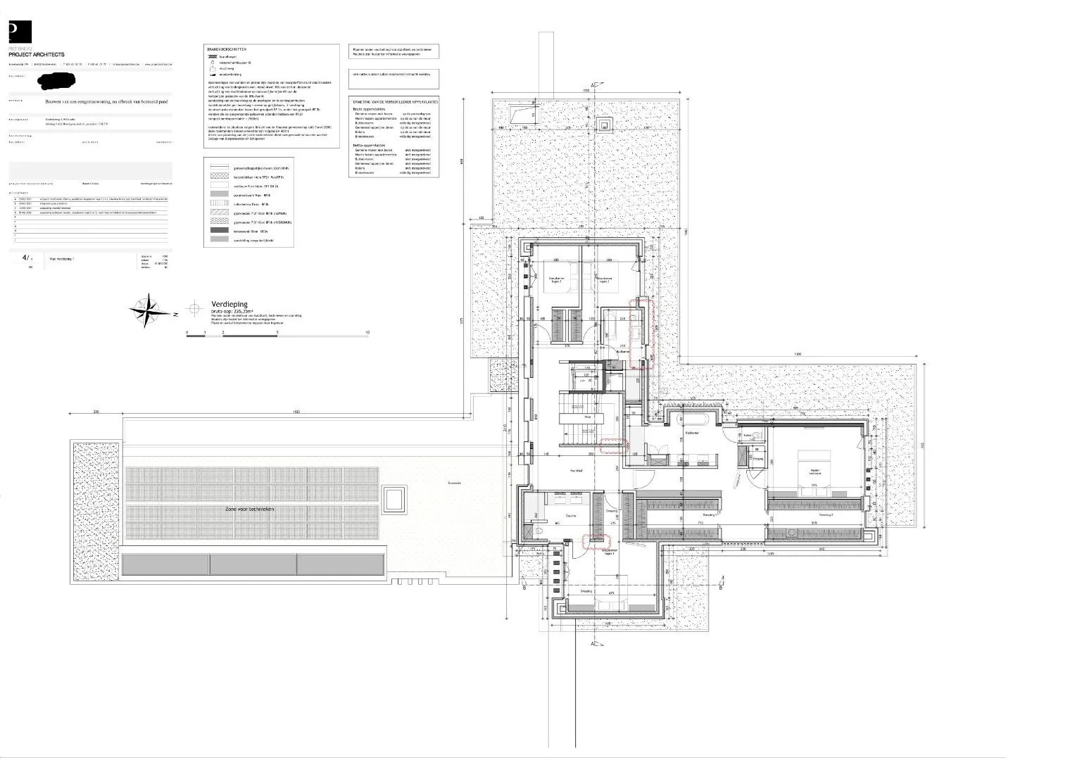
De 1ste verdieping 226,35m² masterbedroom met dressings, sanitair, badkamer, slaapkamer 2 met badkamer , dressing, slaapkamer 3 en 4 met badkamer .
De zolderverdieping 127, 88m² polyvalente ruimte, technische ruimte, lift.
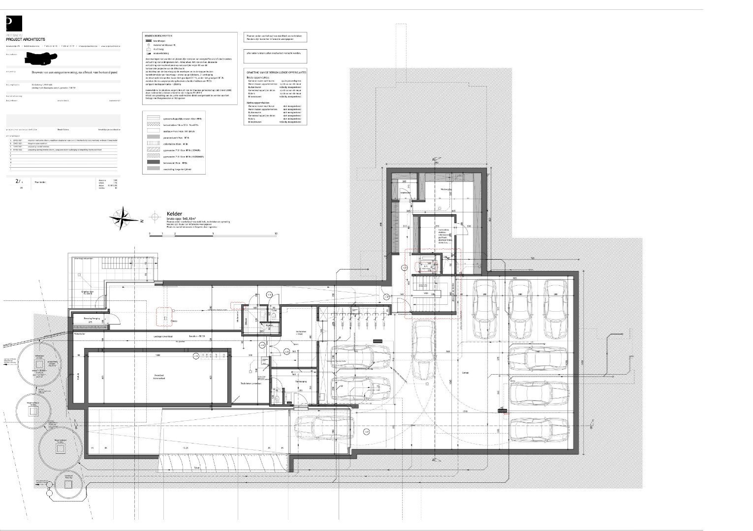
Een ondergrondse garage van 548 m² voor 10 wagens , 7 fietshaken, fitnessruimte, doucheruimte, sanitair , wasberging, lift. technieken, tuinberging, wijnkelder. , regenwaterput ,10.000 liter en 15.000 liter , tuinplan aanwezig.
In een aangename groene woonomgeving te Baardegem nabij het Kravaalbos.
Meer info of een bezoek contacteer sofie@makelaarshuys.be of bel 0468 24 65 84 .
Algemeen
| Adres: | Mechelseweg 5 Baardegem |
| Referentie: | svds-2197nieuwnieuw |
| Type: | Villa |
| Beschikbaar vanaf: | Bij akte |
| Perceeloppervlakte: | 7.045 m² |
| Perceelbreedte: | 60 m |
| Bewoonbare opp.: | 1.405 m² |
| Type constructie: | Traditioneel |
| Bouwjaar: | 2022 |
| Bouwlagen: | 4 |
| Algemene staat: | Luxe-afwerking |
Indeling
| Slaapkamers: | 4 |
| Badkamers: | 4 |
| Douchekamer: | Ja |
| WC: | 7 |
| Bureau: | Ja |
| Woonkamer: | Ja, Doorzonkamer |
| Keuken: | Ja, Half-open keuken, Ingericht met toestellen |
| Bijkeuken: | Ja |
| Berging: | Ja |
| Zolder: | 128 m² |
| Kelder: | 548 m² |
| Praktijkruimte: | Ja |
| Terras: | Ja |
| Wasplaats: | Ja |
| Tuin: | Ja |
| Tuin oriëntatie: | West |
| Tuin kwaliteit: | Aan te leggen |
| Garage: | 10 |
| Parking: | 5 |
Comfort
| Snelweg: | Ja |
| Treinstation: | Ja |
| Busknooppunt: | Ja - op 500 m tot 1000 m |
| Bushalte: | Ja |
| Winkel: | Ja - op 500 m tot 1000 m |
| School: | Ja - op 1000 m tot 1500 m |
| Kinderopvang: | Ja |
| Bank: | Ja - op 1000 m tot 1500 m |
| Ontspanning: | Ja - op minder dan 500 m |
| Restaurant: | Ja - op 1000 m tot 1500 m |
| Raamwerk: | Aluminium |
| Beglazing: | Hoogrendementsglas |
| Verwarming: | Warmtepomp, Aardgas |
Wettelijke gegevens
| Kadastrale Oppervlakte: | 7.045 m² |
| EPC Certificaat Nr.: | 41002-G-omv-2020114082/ep18883/sv/a001/d01 |
| EPC Geldig tot: | 9/02/2031 |
| EPC E-peil: | 28,00 |
| Stedenbouwkundige vergunning: | Ja |
| Voorkooprecht: | Neen |
| Stedenbouwkundige bestemming: | Woongebied |
| Overstromingsgevoelig: | Geen overstromingsgevoelig gebied |
| Overstromingsgebied: | Geen afgebakende zones |
| Erfgoed: | Geen beschermd erfgoed |